По дизайн-проекту своего большого дома в коттеджном посёлке Старый Свет заказчики начинали работать с другими дизайнерами. Но потом решили переделать проект полностью и обратились к нам
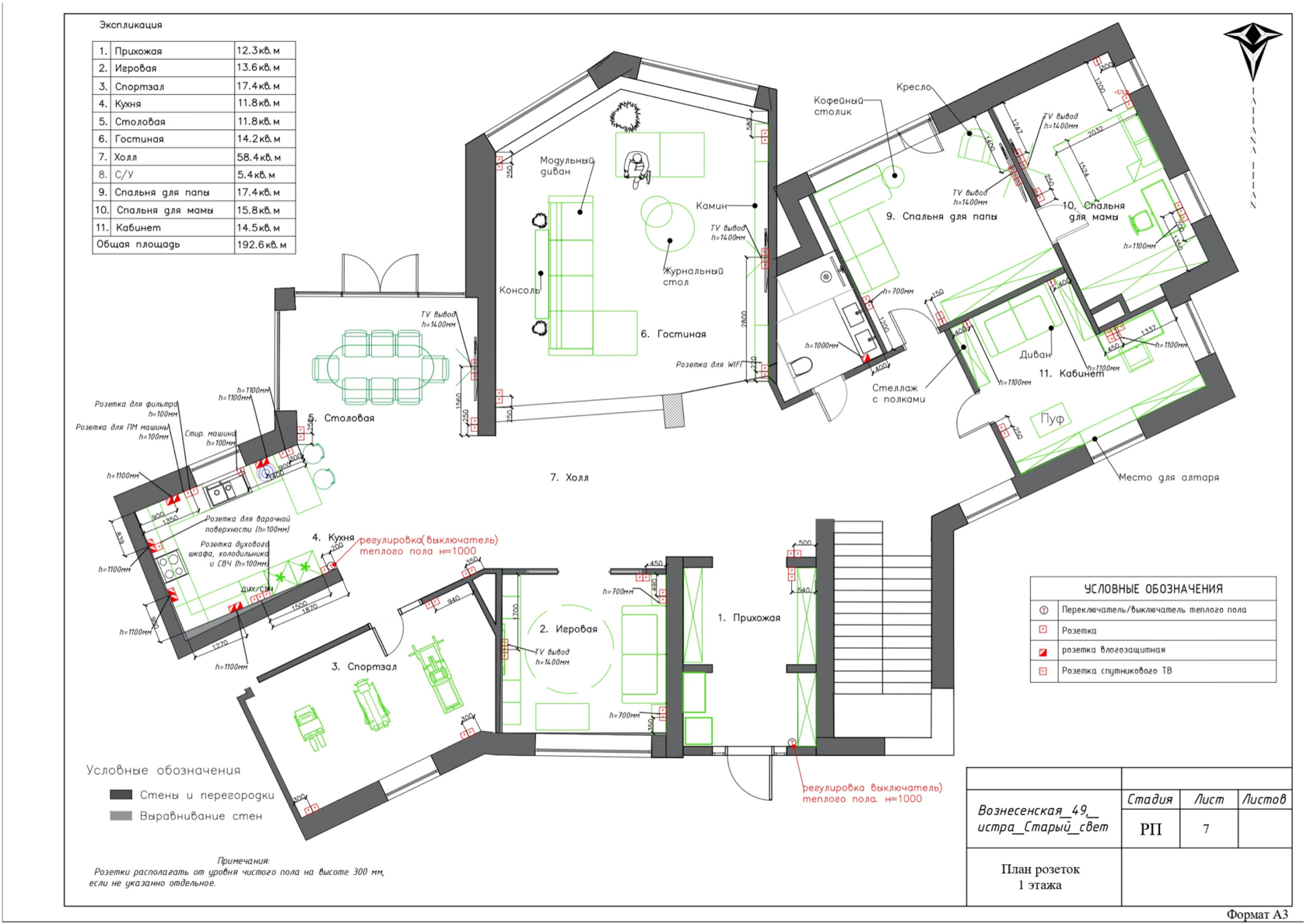
Площадь всего коттеджа более 500 кв.м. На первом этаже мы спланировали пространство по потребностям семьи и для их удобства. Здесь расположился спортзал, кухня, большой холл около 60 кв.м., гостиная, игровая и кабинеты. А на втором этаже получилась приватная зона. Это спальни родителей и детей. Каждая спальня имеет свою гардеробную и санузел. Мансардный этаж взял на себя обязанности кинотеатра
Студия дизайна интерьера
Гостиная-холл с огромными панорамными окнами, создающими эффект второго света. Эта планировка приводит в восторг даже без реализованного проекта дизайна интерьера, поэтому нам нужно было сделать ее главной изюминкой
Данный проект разрабатывался с целью совместить шик, богатство и минимализм в одном помещении. Масштаб потолков в данном случае просто захватывает дух! А для того, чтобы подчеркнуть все преимущества гостиной, подобрали очень интересное сочетание палитры цветов.

За основу взяли пастельный пудровый цвет и несколько его оттенков, которые также использовали в деревянных элементах. Акцентным цветом стал богатый и роскошный изумрудный цвет, а для выразительности элементов было решено добавить немного золота на мелкие детали и фурнитуру мебели


Центром гостиной стал искусственный камин, который оригинально оформлен на стене с деревянной мозаикой. Тут же определили место для телевизора. Напротив камина расположили большой и диван акцентного зеленого цвета с золотыми элементами фурнитуры.

На кухне мы продолжили зелёную тематику, но саму кухню сделали светлую и воздушную.
Здесь и стекло в интерьере, много камня, дерева, зеркальных поверхностей, золотых элементов и акцентного освещения
Здесь же на первом этаже расположилась игровая. Большинство детей любит различных мультгероев. Так и возникают проекты интерьеров детских спален с принтованными стенами, полом или потолком, на которых изображены герои любимых мультфильмов наших детей
Чтобы максимально добиться желаемого результата, который будет соответствовать желаниям и мечтам ребенка наших заказчиков, мы разработали проект, в котором соединили минимализм с яркими акцентными элементами в отделке и декоративными элементах комнаты.

Переходим ко второму этажу, как и говорили ранее, он полностью состоит из спальных зон.


В гардеробной вдоль стен расположили полки для хранения. Все пространство занимают функциональные и эргономичные отделения, шкафчики и полки. Стилистика гардеробной, конечно, продолжает концепцию всего дома, только в ней получилось добиться максимального эко-стиля.


Интерьер спальни сам по себе шикарен, мы использовали здесь все тот же изумрудный цвет. В спальне есть своя гардеробная и санузел.
Также из спальни можно пройти в санузел. Когда попадаешь в него, стилевое оформление интерьера вызывает просто восторг! Все светлое, просторное, без лишних декоративных предметов и очень хорошо сочетается.

Отделка санузла сделана полностью из керамогранита. Сантехнику использовали только современную, соответствующую всем современным технологиям. В ванной комнате удалось разместить три зоны: душевая, ванная и зона красоты.

В виде декора использовали различные баночки и статуэтки, подходящие по стилю, ну и конечно, куда без мини флористики в санузле, с ней ванная комната начала «дышать».

Made on
Tilda